詳細說明
ZDLP電動流量調節閥由PSL系列和3810L系列電子式執行機構和單座調節閥組成。電源為220V.AC 50Hz,含有伺服放大器、位置信號發生器、位置限位開關以及閥位顯示。電子式電動單座調節閥可直接接受工業控制儀表或計算機等輸出的(4-20mADC或1-5VDC)進行閥門的開度控制,達到調節介質壓力流量、溫度等目的。
一、ZDLP電動流量調節閥概述
ZDLP電動流量調節閥由PSL系列和3810L系列電子式執行機構和單座調節閥組成。電源為220V.AC 50Hz,含有伺服放大器、位置信號發生器、位置限位開關以及閥位顯示。可直接接受工業控制儀表或計算機等輸出的(4-20mADC或1-5VDC)進行閥門的開度控制,達到調節介質壓力流量、溫度等目的。同時可以輸出(4-20mADC或1-5VDC)閥位反饋信號。
ZDLP電動流量調節閥閥體為低阻流直通單座上導向結構。具有精度高、流量大、泄漏量小的特點,廣泛用于化工、石油、輕工、電站、冶金等要求流量大、泄漏量小的工業自控系統中。
二、ZDLP電動流量調節閥閥體
型式 | 直通單座鑄造球型閥 |
公稱通徑 | 20、25、32、40、50、65、80、100、125、150、200mm |
公稱壓力 | PN1.6、4.0、6.4MPa |
法蘭標準 | JB/T79.1-94、79.2-94等 |
材料 | 鑄鋼(ZG230-450)、鑄不銹鋼(ZG1Cr18Ni9Ti、ZG1Cr18Ni12Mo2Ti)等 |
上閥蓋 | 標準型-17~+230℃、散熱型+230~+450℃、低溫型-60~-196℃、波紋管密封型-40~+350℃ |
壓蓋型式 | 螺栓壓緊式 |
填料 | V型聚四氟乙烯填料、含浸聚四氟乙烯石棉填料、石棉紡織填料、石墨填料 |
三、ZDLP電動流量調節閥閥內組件
閥芯型式 | 單座柱塞型閥芯 |
流量特性 | 等百分比特性和線性特性 |
材 料 | 不銹鋼(1Cr18Ni9Ti、1Cr18Ni12Mo2Ti、17-4PH、9Cr18、316L)、不銹鋼堆焊司太萊合金、 |
四、ZDLP電動流量調節閥執行機構
型號 | 381LSA-08 | 381LSA-20 | 381 LSA -30 | 381 LSA -50 | 381 LSA -65 | 381 LSA -99 | 381 LSA -160 |
隔爆型號 | 381-08 | 381-20 | 381-30 | 381-50 | 381-65 | 381-99 | 381-160 |
輸出力推(N) | 800 | 2000 | 3000 | 5000 | 6500 | 10000 | 16000 |
大行程L(mm) | 30 | 60 | 100 | ||||
工作速度(mm/S) | 4.2 | 2.1 | 3.5 | 1.7 | 2.8 | 2.0 | 1.0 |
主要技術參數 | 電源電壓:220V/50Hz 輸入信號:4-20mA或1-5V·DC 輸出信號:4-20mA·DC | ||||||
防護等級:相當IP55 隔爆標志:ExdⅡBT4 手操功能:手柄 | |||||||
環境溫度:-25~+70℃ 環境濕度:≤95% | |||||||
五、ZDLP電動流量調節閥技術參數
公稱通徑DN(mm) | 25 | 32 | 40 | 50 | 65 | 80 | 100 | 125 | 150 | 200 |
閥座直徑dn(mm) | 26 | 32 | 40 | 50 | 65 | 80 | 100 | 125 | 150 | 200 |
額定流量系數Kv | 8 | 13 | 22 | 32 | 50 | 80 | 120 | 200 | 280 | 450 |
額定行程L(mm) | 16 | 25 | 40 | 60 | ||||||
配用執行機構型號 | 381LSA /381-20 | 381LSA /381-30 | 381LSA /381-50 | 381LSA /381-65 | ||||||
允許壓差(Mpa) | 3.0 | 2.0 | 1.8 | 1.05 | 1.16 | 0.67 | 0.47 | 0.39 | 0.26 | 0.16 |
六、ZDLP電動流量調節閥性能
項目 | 技術指標 | |||
基本誤差% | ±2.5 | |||
回差% | ≤2.0 | |||
死 區% | ≤1.0 | |||
始終點偏差% | 電開 |
| 始點 | ±2.5 |
| 終點 | ±2.5 | ||
電關 |
| 始點 | ±2.5 | |
| 終點 | ±2.5 | ||
額定行程偏差% | ≤2.5 | |||
泄 露 量l/h | 0.1%×閥額定容量 | |||
可調范圍R | 30:1 | |||
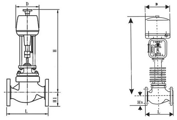
七、ZDLP電動流量調節閥外形尺寸

公稱通徑DN | 20 | 25 | 32 | 40 | 50 | 65 | 80 | 100 | 125 | 150 | 200 | |
L | PN16/40 | 181 | 184 | 220 | 222 | 254 | 276 | 298 | 352 | 410 | 451 | 600 |
PN64 | 206 | 210 | 251 | 251 | 286 | 311 | 337 | 394 | 457 | 508 | 650 | |
D | 225 | 225 | 225 | 225 | 225 | 255 | 255 | 255 | 310 | 310 | 310 | |
R | 177 | 177 | 177 | 177 | 177 | 177 | 177 | 177 | 226 | 226 | 226 | |
H1 | PN16/40 | 128 | 128 | 152 | 152 | 160 | 205 | 205 | 208 | 273 | 330 | 364 |
PN64 | 140 | 140 | 160 | 160 | 180 | 210 | 210 | 220 | 290 | 340 | 370 | |
H3 | PN16/40 | 144 | 144 | 172 | 172 | 180 | 232 | 232 | 235 | 300 | 357 | 391 |
PN64 | 156 | 156 | 180 | 180 | 200 | 237 | 237 | 247 | 317 | 367 | 397 | |
H2 | 373 | 373 | 495 | 495 | 495 | 700 | 700 | 700 | 725 | 725 | 725 | |
H4 | 459 | 459 | 459 | 459 | 459 | 520 | 520 | 520 | 570 | 570 | 570 | |
H5 | PN16/40 | 53 | 58 | 68 | 73 | 80 | 90 | 98 | 108 | 123 | 140 | 168 |
PN64 | 63 | 68 | 75 | 83 | 88 | 100 | 105 | 125 | 148 | 170 | 203 | |
八、ZDLP電動流量調節閥訂貨須知
①ZDLP電動流量調節閥產品名稱與參數
②ZDLP電動流量調節閥口徑的選擇
③ZDLP電動流量調節閥流量特性選擇
④ZDLP電動流量調節閥調節速度選擇
⑤ZDLP電動流量調節閥作用方式選擇
⑥ZDLP電動流量調節閥泄漏量應滿足工藝要求
⑦ZDLP電動流量調節閥壓差(包括正常工作壓差,閥關閉時壓差)
⑧ZDLP電動流量調節閥防堵性
⑨ZDLP電動流量調節閥耐蝕性等以及是否帶附件以便我們的為您正確選型。
上一個:電動溫控調節閥 溫度控制閥 下一個:A105防爆電動高壓調節閥T948Y



相關新聞
相關產品
氣動對夾蝶閥D671
氣動對夾蝶閥D671X
自力式壓力/壓差控制閥
電動雙座調節閥