詳細說明
ZMAQ(X)氣動三通調節閥有分流型和合流型兩種形式,可替代兩臺氣動薄膜單座調節閥。氣動薄膜三通調節閥閥選用不同的結構形式適用于把一種流體通過三通閥分成二路流出或把兩種流體經三通閥合并成一種流體的場合。并可控制流體的流量及壓力等參數。
ZMAQ(X)氣動三通調節閥有合流和分流兩種結構形式。閥芯結構采用圓筒薄壁窗口,并采用閥芯側面導向,三通閥在某些場合可以替代兩個氣動單座調節閥和一個三通接管而等到廣泛應用常用于熱交換器的兩相調節,也可用于簡單的配比調節。公稱通徑和壓差較小時,合流閥可用于分流場合,可互換使用,但公稱通徑大于80mm和壓。差較大的分流場合,不能互換使用。
氣動三通調節閥采用圓筒型薄壁窗口形閥芯導向,不同于柱塞形閥芯的襯套導向。配用多彈簧執行機構,具有結構簡單、重量輕、體積小、拆裝方便等優點。廣泛應用于精確控制氣體、液體等介質的工藝參加如壓力、流量、溫度、液位保持在給定值。適合于把一種流體通過三通閥分成二路流出或理把兩種流體經三通閥合并成一種流體的場合。
氣動三通調節閥有三通合流及三通分流兩種。公稱壓力有PN16、40、64;公稱通徑范圍DN25—300。適用流體溫度由-60℃至+450℃。泄漏量標準為Ⅳ級。流量特性有直線、拋物線兩種。氣動三通調節閥需要接通氣源才可以工作。有些施工現場無氣源可以改選同類型的電動三通調節閥使用。
二、ZMAQ(X)氣動三通調節閥型號意義
三、ZMAQ(X)氣動三通調節閥技術參數
閥座直徑mm | 合流 | 25 | 32 | 40 | 50 | 65 | 80 | 100 | 125 | 150 | 200 | 250 | 300 |
分流 | 25 | 32 | 40 | 50 | 65 | 80 | 100 | 125 | 150 | 200 | 250 | 300 | |
額定流量 | 合流 | 8.5 | 13 | 21 | 34 | 52 | 85 | 125 | 210 | 340 | 535 | 800 | 1260 |
分流 | 25 | 32 | 40 | 50 | 65 | 85 | 125 | 210 | 340 | 535 | 800 | 1260 | |
公稱壓力MPa | 1.6 4.0 6.4 | ||||||||||||
行 程mm | 16 | 25 | 40 | 60 | 100 | ||||||||
流量特性 | 直線 | ||||||||||||
介質溫度℃ | -20~200、-40~+250(常溫型)、-40~315(中溫型) | ||||||||||||
法蘭尺寸 | 鑄鐵法蘭尺寸按JB79-59,鑄鋼法蘭尺寸按JB79-59 | ||||||||||||
法蘭型式 | 法蘭密封面型式按JB77-59,其中鑄鋼法蘭按光滑式,鑄鋼法蘭按凹式 | ||||||||||||
閥體材質 | HT200,ZG230-450、ZG1Cr18Ni9 | ||||||||||||
閥芯材質 | 1Cr18Ni9 | ||||||||||||
上閥蓋型式 | 普通式(常溫型),熱片式(中溫型) | ||||||||||||
可調比 | 30:1 | ||||||||||||
氣源接頭 | M16×1.5 | ||||||||||||
四、ZMAQ(X)氣動薄膜三通閥執行機構技術參數
型 號 | ZHA(B)-3 | ZHA(B)-4 | ZHA(B)-5 | ZHA(B)-6 |
有效面積cm2 | 400 | 630 | 1000 | 1600 |
行 程mm | 16.25 | 40 | 60 | 1000 |
彈簧范圍KPa | 20~100;40~200、20~60、60~100、80~240 | |||
可配附件:定位器手輪機構 空氣過濾減壓器等。
五、ZMAQ(X)氣動三通調節閥性能指標
項目 | 不帶定位器 | 帶定位器 | ||
基本誤差% | ±6 | ±1.5 | ||
回差% | 5 | 1.5 | ||
死區% | 4 | 0.6 | ||
始終點偏差% | 氣關 | 始點 | ±2.5 | ±1.5 |
終點 | ±6.0 | |||
氣開 | 始點 | ±6.0 | ||
終點 | ±2.5 | |||
額定行程偏差% | ±2.5 | |||
允許泄漏量L/h | 10-3×閥額定容量 | |||
注:一般均應帶定位器
六、ZMAQ(X)氣動三通調節閥零件材料
零件名稱 | 材料 | 溫度范圍 |
閥 體 | HT200 | -20~200℃ |
ZG230-450 | -40~450℃ | |
ZG1Cr18Ni9Ti | -250~550℃ | |
閥芯、閥座、閥桿 | 1Cr18Ni9 | -250~550℃ |
密封墊 | 橡膠石棉板 |
|
不銹鋼纏繞墊 |
| |
填料 | 聚四氟乙烯 |
|
上下膜蓋 | A3鋼板 |
|
膜片 | 35CrMoA |
|
35、A3 |
| |
支架、頂盤 | HT200 |
|
壓縮彈簧 | 60Si2Mn |
|
波紡薄膜 | 5806膠夾480D尼龍66網眼布 |
|
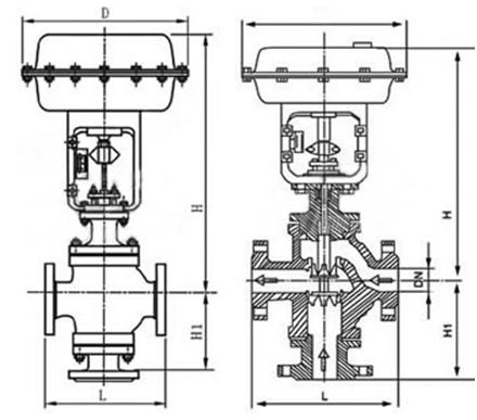
七、ZMAQ(X)氣動薄膜三通調節閥外形尺寸

ZMAQ氣動薄膜三通調節閥(合流) ZMAX氣動薄膜三通調節閥(分流)
公稱通徑(mm) | 25 | 32 | 40 | 50 | 65 | 80 | 100 | 125 | 150 | 200 | 250 | 300 | |
L(mm) | PN1.6MPa | 185 | 200 | 220 | 250 | 275 | 300 | 350 | 410 | 450 | 550 | 635 | 720 |
PN4.0MPa | 190 | 210 | 230 | 255 | 285 | 310 | 355 | 425 | 460 | 560 | 660 | 740 | |
PN6.4MPa | 200 | 210 | 235 | 265 | 295 | 320 | 370 | 440 | 475 | 570 | 670 | 770 | |
H1(mm) | PN1.6MPa | 140 | 150 | 160 | 180 | 200 | 220 | 220 | 256 | 278 | 322 | 540 | 612 |
PN4.0MPa | 150 | 160 | 170 | 190 | 220 | 232 | 256 | 295 | 313 | 372 | 540 | 612 | |
PN6.4MPa | 160 | 170 | 180 | 200 | 220 | 242 | 266 | 300 | 318 | 382 | 540 | 612 | |
H(mm) | 普通型 | 435 | 441 | 465 | 480 | 584 | 585 | 575 | 762 | 772 | 792 | 1203 | 1234 |
散熱片型 | 565 | 571 | 595 | 610 | 631 | 748 | 738 | 961 | 971 | 989 | 1525 | 1554 | |
D(mm) | 285 | 360 | 470 | ||||||||||
重量(KG) | 72 | 75 | 81 | 88 | 135 | 158 | 190 | 262 | 322 | 450 | 550 | 600 | |
注:公稱通徑小于80的分流閥采用同口徑的合流閥代替
八、ZMAQ(X)氣動薄膜三通調節閥訂貨須知
若訂貨前還未選定型號,請盡量向我們提供以下參數
1.氣動三通調節閥公稱通徑、額定流量系數KV,2.氣動三通調節閥流體性質(包括公稱壓力、溫度、粘度或酸堿性),3.氣動三通調節閥流量特性,4.氣動三通調節閥的開關型式,5.氣動三通調節閥閥體、閥芯材料。
公稱通徑(mm) | 25 | 32 | 40 | 50 | 65 | 80 | 100 | 125 | 150 | 200 | 250 | 300 | |
L(mm) | PN1.6MPa | 185 | 200 | 220 | 250 | 275 | 300 | 350 | 410 | 450 | 550 | 635 | 720 |
PN4.0MPa | 190 | 210 | 230 | 255 | 285 | 310 | 355 | 425 | 460 | 560 | 660 | 740 | |
PN6.4MPa | 200 | 210 | 235 | 265 | 295 | 320 | 370 | 440 | 475 | 570 | 670 | 770 | |
H1(mm) | PN1.6MPa | 140 | 150 | 160 | 180 | 200 | 220 | 220 | 256 | 278 | 322 | 540 | 612 |
PN4.0MPa | 150 | 160 | 170 | 190 | 220 | 232 | 256 | 295 | 313 | 372 | 540 | 612 | |
PN6.4MPa | 160 | 170 | 180 | 200 | 220 | 242 | 266 | 300 | 318 | 382 | 540 | 612 | |
H(mm) | 普通型 | 435 | 441 | 465 | 480 | 584 | 585 | 575 | 762 | 772 | 792 | 1203 | 1234 |
散熱片型 | 565 | 571 | 595 | 610 | 631 | 748 | 738 | 961 | 971 | 989 | 1525 | 1554 | |
D(mm) | 285 | 360 | 470 | ||||||||||
重量(KG) | 72 | 75 | 81 | 88 | 135 | 158 | 190 | 262 | 322 | 450 | 550 | 600 | |
注:公稱通徑小于80的分流閥采用同口徑的合流閥代替
八、ZMAQ(X)氣動薄膜三通調節閥訂貨須知
若訂貨前還未選定型號,請盡量向我們提供以下參數
1.氣動三通調節閥公稱通徑、額定流量系數KV,2.氣動三通調節閥流體性質(包括公稱壓力、溫度、粘度或酸堿性),3.氣動三通調節閥流量特性,4.氣動三通調節閥的開關型式,5.氣動三通調節閥閥體、閥芯材料。



相關新聞
相關產品
ZMPQ/ZSPQ氣動薄膜活塞切斷閥
氣動薄膜單座調節閥
氣動薄膜精小型角形調節閥ZJHS
偏心旋轉閥法蘭式
氣動對夾蝶閥D671